Vectorworks Navi 6m CUBE
このページでは、Vectorworksを「初めて操作する方」向けに Vectorworks の基本的な操作方法(2D/3D)をまとめています。
6mキューブとは
幅6m、奥行き6m、高さ6mの6m立方の空間の中に階層を持つ空間をデザインする、という建築やインテリア関係学科の大学/専門学校などでも取り扱われる、初歩の課題の一つです。6m立方とも呼ばれます。
このページでは、この6mキューブを Vectorworks 上で作成していくことで、Vectorworks の基本操作や機能を体験していただくことを目的としています。
Vectorworksの2D/3Dの基礎操作については、「Vectorworks Navi スタートアップ」をご覧ください。
より詳細な機能や使用方法については、Vectorworks ヘルプ や Vectorworks University などをご覧ください。
Vectorworks Architectやレンダリング、ワークシートなどについてはそれぞれの Vectorworks Navi でも紹介しています。
合わせてご参考ください。
なお、このページは Vectorworks Architect および Design Suiteでの操作を想定しています。Vectorworks 評価版での操作をお試しいただく場合は、Architect もしくは Design Suite で評価版を申請するようにしてください。
また、このページでご紹介する各機能は、各機能のすべての操作解説は行っておりません。各機能の詳細については Vectorworks ヘルプ をご覧ください。
このページは Vectorworks 2026 で作成しています。
作図の前の事前準備
Vectorworks には5種類の製品があります。
- Architectの場合: 建築業向けのツールを搭載。
- Landmarkの場合: 造園業向けのツールを搭載。
- Spotlightの場合: エンタテインメント向けのツールを搭載。
- Design Suiteの場合: 建築、造園、エンタテインメントのすべてのツールを利用可能。
Vectorworks では、それぞれの製品によって各分野別の機能を管理するために『作業画面』という機能があります。
『作業画面』は、『ツール』メニュー >『作業画面』から切り替えることができます。
『作業画面」は製品に応じて使用できるツールが表示されます。以下手順では建築設計向けの機能を使って作業を行いますので、『Architect』作業画面を選択してください。
TIPS: 作業画面のカスタマイズ
作業画面は自分の操作しやすいようにカスタマイズが可能です。
操作に慣れていたらカスタマイズをお試しください。
作業画面の編集方法はこちらをご覧ください。
Vectorworks で作図をしていく前に、まずは準備として用紙設定を行いましょう。
Vectorworks の「用紙設定」とは、印刷範囲を設定するという意味合いになります。
用紙設定は後から変更することもできますが、A3サイズ横向きで印刷する場合は、最終的な成果物としての希望があればこのタイミングで設定して、その枠内に収まるように作図します。
用紙サイズを設定するには、画面上部にあるメニューバーの中の『ファイル』メニューの『用紙設定』を選択します。
『用紙設定』を選択すると、『用紙設定』ダイアログが開きます。ここで用紙の大きさや枚数などを選択できます。
Vectorworks の用紙設定は、ご利用のプリンタドライバの情報を参照しており、プリンタドライバが対応していない大きさは設定することができません。(例: A4サイズまでしか対応していないプリンタではA3サイズは選択できません)
こういった場合には、用紙を複数枚並べるなどして擬似的にそのサイズを設定してください。
本手順ではA3横向きサイズにします。
『ファイル』メニュー >『用紙設定』より用紙設定ダイアログの「用紙の大きさ」項目で「サイズを選択」項目にチェックを入れプルダウンより「単用紙」を選択します。
「プリンタ設定」ボタンをクリックし、ページ設定ダイアログで用紙サイズをA3、向きを横向きに設定してOKボタンでダイアログを閉じます。
用紙設定ダイアログもOKボタンで閉じたら、用紙の設定は終了です。
作図前にレイヤを作成します。今回はレイヤをあらかじめ作成しておきます。
『ツール』メニュー >『オーガナイザ』を開き、「デザインレイヤ」タブを選択して「新規」ボタンをクリックします。名前に「1F」と入力して「OK」ボタンをクリックします。
これで「1F」という名前のレイヤが作成されますので、これをクリックで選択して「編集」ボタンから「1F」レイヤの編集画面に入ります。
縮尺を設定します。
縮尺の行の右端にある「縮尺」ボタンをクリックし、「1:50」にチェックを入れてOKボタンをクリックします。
次に「壁の高さ」と「切断面の高さ」を設定します。
壁の高さはこのレイヤに壁を配置した際のデフォルトの高さになります。今回は6mのキューブ形状で2階層に分けますので壁の高さは「3000」と設定します。
Vectorworks 2026よりレイヤごとに切断面の設定を行えるようになりました。
切断面とは2D図面化した際の図面表現の高さのラインになります。例えば3Dモデルより平面図を作成する際は、イメージとしてはモデルを水平断面にすることで作成しますが、この時の「水平断面の高さ」になります。
今回はデフォルトの「1000」から変更して「1500」に設定したいと思います。
次に、再度新規ボタンをクリックして名称「2F」レイヤを作成します。名称を入力してOKボタンをクリックすると、オーガナイザ上に「2F」レイヤが作成されます。
レイヤ名の横を見ると縮尺が「1:50」となっているのが確認できます。Vectorworks では先に作成した「1F」レイヤの縮尺を自動的に参照して設定しますので、一度設定してしまえば異なる縮尺のレイヤを作らない場合は再入力の必要はありません。
また、「高さ」「壁の高さ」「切断面の高さ」にも数値が入っています。これもVectorworksが自動的に先に作成したレイヤの情報を参照して、1Fレイヤの壁の高さの上に来るようにレイヤの高さを設定してくれるためです。
2Fレイヤは自動で設定されている「縮尺 1:50」「高さ:3000」「壁の高さ:3000」「切断面の高さ:1500」になっていることを確認し、2Fレイヤの作成は完了です。
次に「屋根」レイヤを作成します。
「屋根」レイヤも「2F」レイヤと同様に自動的に縮尺や高さなどが入力され作成されます。
屋根レイヤでは壁は使いませんので、屋根レイヤの壁の高さなどの編集を行います。
屋根レイヤを選択して「編集」ボタンをクリックし、編集ダイアログで「壁の高さ」を「0」、「切断面の高さ」を「0」「高さ」と入力してOKボタンをクリックします。
次に「通り芯」レイヤを作成します。
他レイヤと同様に新規ボタンをクリックし、「名前」を「通り芯」と入力し、OKボタンをクリック、その後「編集」ボタンをクリックし、通り芯レイヤの「高さ」「壁の高さ」「切断面の位置」をすべて「0」と入力してOKボタンをクリックします。
これで今回のレイヤの設定は完了です。
レイヤ設定は後から変更することももちろんできますし、作業中にレイヤが増えることもよくあります。ある程度使用するレイヤのイメージができている場合は、今回のように事前に作成しておくと作業がスムーズになりますのでご参考ください。
最後に、自動作成されている「レイヤ1」は今回使用しませんので、選択して「削除」し、オーガナイザをOKボタンをクリックして閉じれば設定が反映され、作業は完了です。
OKボタンを押さないとせっかく作業した内容が反映されませんのでお気をつけください。
今回作成するレイヤの状況をまとめます。以下の形になっていれば完了です。
設定確認
- 通り芯/縮尺1:50/高さ:0/壁の高さ:0/切断面の高さ:0
- 屋根/縮尺1:50/高さ:6000/壁の高さ:0/切断面の高さ:0
- 2F/縮尺1:50/高さ:3000/壁の高さ:3000/切断面の高さ:1500
- 1F/縮尺1:50/高さ:0/壁の高さ:3000/切断面の高さ:1500
通り芯を作成する際などはグリッド線が表示されているほうが一般的には作業がしやすくなります。
今回はグリッド線の設定をしていきます。
グリッド線は『グリッドスナップ』セットで設定することができます。
「スナップセット」は表示バーの右側、画面全体の右上付近に配置されています。
『グリッドスナップ』のアイコン上でダブルクリックを行い、「グリッド設定」を表示します。
下側にある「グリッドの表示」項目にチェックを入れ、スナップグリッドとレファレンスグリッドの「縦横同比率」にもチェックを入れます。
次に、画面上に表示されるグリッド線であるレファレンスグリッドに数値を入力します。
6m四方の空間の作成になるので、1000mm四方のグリッドだと操作がしやすくなります。
Xの値に「1000」と入力します。
スナップグリッドの数値を入力します。
スナップグリッドとは、簡単に言えば作図する際の「吸い付き」の間隔の設定になります。スナップグリッドは画面上に表示はされませんが設定しておくことで、設定した値の間隔で吸い付くように図形が配置されるようになります。
リファレンスグリッドと同値にするという考え方もありますが、今回はもう少し間隔を小さくしたいのでスナップグリッドのXの値には「500」と入力します。
入力後に、画面上の他の箇所をクリックするとグリッド設定が閉じます。
最後に、『グリッドスナップ』アイコンをクリックして、スナップ機能をオンにして完了です。
これで画面上に水色の線で1000mm四方のグリッドが表示され、図形を描く際は500mm間隔でしか作図することができない状態になります。
もしも、「500mm間隔に縛られず自由に作図したい」「グリッド線が不要なので表示したくない」場合には再度『グリッドスナップ』アイコンをクリックするとオフにすることができます。
空間デザインを行ってみよう
通り芯の作図を行います。
使用するレイヤを通り芯レイヤに切り替えます。
現在選択中のレイヤのことを「アクティブレイヤ」と呼称します。
アクティブレイヤは、表示バー内の「レイヤ/クラス」項目、もしくは『ナビゲーション』パレットから簡単に切り替えることができます。
表示バーの「レイヤ/クラス」からアクティブレイヤを切り替える
表示バーの「レイヤ/クラス」の項目には、現在選択中のレイヤとクラスが表示されています。
新規でファイルを開いた場合は「レイヤ-1」と「一般」クラスが選択されています。
「レイヤ-1」と表示されているプルダウンをクリックすると、現在作成されているレイヤの一覧が表示されますので、この中から「通り芯」を選択するとアクティブレイヤが切り替わります。
ナビゲーションパレットからアクティブレイヤを切り替える
作業画面の右下に配置されている『ナビゲーション』パレットでは、レイヤ/クラスなどを素早く切り替え、設定することが可能です。
『ナビゲーション』パレットの上部にタブがあり、タブを切り替えることでレイヤやクラスなどの一覧を表示します。
「レイヤ」タブに切り替えるとレイヤの一覧が表示されます。この中で現在選択されているレイヤ(アクティブレイヤ)には名称の横にチェックマークが付いていますので、「通り芯」レイヤの名称の横、チェックマークの列をクリックするとチェックが入り、アクティブレイヤが切り替わります。
設定確認
- ビュー: 2D/平面
- アクティブレイヤ: 通り芯
アクティブレイヤを「通り芯」に変更後、「直線」ツールでグリッドに沿ってX方向、Y方向に3000mmのスパンで3本ずつ作図します。
通り芯を赤色の一点鎖線に変更します。
『セレクション』ツールで、作図したすべての線を囲うようにドラック操作し、選択できたら『属性』パレットより線の色を赤色、線種を一点鎖線に変更します。
通り芯番号は、「円」ツールで円を作図後、「文字」ツールで文字入力します。
これで通り芯レイヤの作図は終了です。
1Fの壁を作図します。
設定確認
- ビュー: 2D/平面
- アクティブレイヤ: 1F
アクティブレイヤを切り変えることで、今まで実線で見えていた通り芯がグレイ表示に変わります。これはレイヤオプションの設定が「ほかをグレイ表示/スナップ」の設定になっているためです。
例えば、他のレイヤに描かれた線を実線で表示する場合には、レイヤオプションを「ほかを表示」の設定に変えるとアクティブレイヤ以外の図形を表示することができます。
また、レイヤオプションのその他の内容として「スナップ」と「編集」があります。これら2つの違いは以下の通りです。
スナップ
「スナップ」は他のソフトウェアでは「吸い付き」等と呼ばれる機能のことです。
他のレイヤに描かれている図形に接して図形を配置したい際に使用します。
編集
レイヤオプションを「編集」にすると、他のレイヤに描かれている図形を移動、編集できるようになります。
レイヤを切り替えなくとも操作できるため手間は減りますが、アクティブレイヤの図形操作時に無意識のうちにほかのレイヤの図形を動かしてしまうなどのデメリットも存在します。
Vectorworksの操作に慣れるまでは「編集」ではなく「スナップ」にしておくことをおすすめします。
レイヤオプションを変更する場合は『オーガナイザ』もしくは『ナビゲーション』パレットから設定変更できます。
アクティブレイヤを「1F」に切り替え、壁を作図します。
壁は『ツールセット』パレット内の『建物』ツールセットに入っている『壁』ツールを使用します。
壁ツールは非常に便利なツールです。2Dの多角形ツールのような操作感で、設定した壁厚・高さで3Dの壁を作図してくれます。また今回は使用しませんが壁の構成(躯体・仕上げ材)を設定して作図することで、構成要素も表現することが可能です。
先に壁の厚さや高さを設定します。『壁』ツールを選択し表示バーのモードの右端にあるペンとスパナが交差するアイコン「壁ツール設定」をクリックし、壁の設定ダイアログを表示します。
壁の設定ダイアログでは、壁の厚さ、壁の高さ、構成要素などを設定することができます。
まず「情報」タブの「全体の厚み:」を確認します。初期値は150になっておりここで作図する壁の厚みを変更することができます。今回は「150」のまま進めますが、実務の際には壁の厚さに合わせて「100」や「200」など入力してください。
次に「配置オプション」タブをクリックし、高さを設定します。
高さ項目の「高さ:」は初期値では3000になっていますが、今回は壁を配置したレイヤに設定されている「壁の高さ」を参照するように設定していきます。「高さ基準(上)」の項目をクリックしプルダウンから「壁の高さ(レイヤ設定)」を選択します。こうすることでレイヤの壁の高さ設定を変更した際にそのレイヤで描かれている壁はレイヤの壁の高さ設定に自動的に追従してくれます。
設定ができたら右下のOKボタンをクリックしてダイアログを閉じます。
壁の厚さと高さの設定ができたら、作図してみましょう。
表示されているグリッド線をなぞるように壁ツールを作図していきます。今回グリッドは1000mmごとに表示されていますので、6マス×6マスの範囲を囲うように作図します。壁ツールのモードが中心指定モードになっていることを確認し、グリッドの交点でクリックをし、6マス進んだ先で再度クリック、向きを変更し元の位置に戻るように作図していきます。
最後に始点の位置に戻りクリックすると壁の図形が閉じられ、図形が作成されます。
一見するとただの2D図形ですが、ビューを「斜め右」に切り替えてみましょう。先に設定した壁の高さで3Dの壁形状が表示されます。
モデルの確認ができたら、ビューは「2D/平面」に戻しておきましょう。
壁ツールは、簡単な操作で建築用3Dモデルを作ることができる便利なツールです。ぜひご活用ください。
TIPS:『斜め右』ビュー時の表現
『斜め右』などの3D表示ビューにすると、『シェイド』レンダリングという簡易的な3Dレンダリング表示になります。
3Dビューでも線図のように表現したい場合は、レンダリングを『ワイヤーフレーム』に変更してください。
Vectorworks Fundamentalsの場合
Fundamentals製品には壁ツールが搭載されていません。
このため、壁を描くには『ダブルライン多角形』ツールを使用します。幅を「150」、表示バーのペンとスパナの交差するアイコンの「ダブルライン多角形ツール設定」を開きます。オプション項目で「面を作る」にチェックを入れ、中心指定モードで上記の手順と同様に通り芯の交点でクリックします。作図が完了したら『モデル』メニューから『押し出し』コマンドを実行して高さ「3000」で作成してください。
1Fの壁の作成後、床を作っていきます。
床を作る方法はいくつかありますが、本手順では『スラブ』ツールで作成していきます。
操作を行う前に、ビューが「2D/平面」、レイヤが「1F」に切り替えてください。
設定確認
- ビュー: 2D/平面
- アクティブレイヤ: 1F
『スラブ』ツールは、選択した壁で囲まれた範囲(上下左右4枚の壁)にスラブオブジェクトを作ってくれるツールです。
『スラブ』ツールで外壁をすべてクリックし選択し、Enterキーもしくは表示バーの緑のチェックマークをクリックすると、壁の内側にスラブが作成されます。
壁を選択してスラブを作るモード以外にも、壁や多角形などと同様にクリックで頂点を選択して、選択された範囲にスラブを作るモードもあります。(このモードは2Fの床で使用します。)
『スラブ』ツールは壁のように構成要素を設定することができるオブジェクトですが、今回はこの設定は行いません。
『スラブ』ツールの詳細については、Vectorworks ヘルプ のスラブツールの項をご覧ください。
階段を設置します。
階段の設置は、基本的に下の階層のレイヤで行いますので、『1F』レイヤに作図します。
設定確認
- ビュー: 2D/平面
- アクティブレイヤ: 1F
- レイヤオプション: ほかをグレイ表示/スナップ
階段も Vectorworks では専用ツールを使って配置できます。『ドア』ツールや『窓』ツールと同様に、『ツールセット』パレットの『建物』ツールセットにある『階段』ツールを使用します。
階段ツール
『階段』ツールの使用方法は、始点となる位置で一回クリックし、2回目のクリックで向きを決定するシンプルな操作です。
初期設定では直線的な階段ですが、階段の形状や高さ、配置箇所などはこのあと設定を行いますので、任意の場所に配置します。
『階段』ツールは、『ドア』『窓』などに比べて『オブジェクト情報』パレットから変更できる内容が少ないです。
階段の形状などを設定する場合は、『オブジェクト情報』パレットの「設定」ボタンをクリックします。
階段も設定を細かくする場合には多岐に及びますが、今回は階段の形状、高さ、手摺を設定していきます。
階段の形状
階段の設定ダイアログ内の「一般」タブで、階段の形状(L字形状、U字形状など)を設定することができます。
「一般」タブ >「形式」項目の「標準形式を選択」ボタンをクリックします。「階段構成の選択」ダイアログが表示されるので、ここで希望の階段形状にチェックを入れます。
今回は「L字,踊り場あり」を選択しています。設定したら右下のOKボタンをクリックします。
階段の高さ
階段の高さも「一般」タブ内の「形式設定」項目内で設定することもできますが、今回は「形状設定」タブ内の各項目を操作して段数や幅などを設定していきます。
高さの設定項目は、左上にある「値を指定」項目がそれに当たります。ここの数値は初期値では3000になっています。この項目も壁と同様に配置しているレイヤの高さを参照して自動調整することが可能です。
次に「辺1」「辺2」を設定します。辺がどこの部分を指す項目なのかは項目名の横の絵を見ることで直感的に確認ができます。
今回は辺1、辺2共に「2850」と設定します。
そのほか階段幅なども変更することが可能です。必要に応じて任意に変更を加えてください。
これで階段の基本的な形状や大きさの設定は完了です。
階段の高さ設定は、「ストーリ」という Architect の階高や各種レベルを設定する機能を使うことで連動させることもできます。
ストーリ設定については、Vectorworks Navi Architect や Vectorworks ヘルプ 複数のストーリを備えた建物構造を設定する をご参照ください。
階段の手摺
階段の手摺は、「手摺」タブより変更できます。
Vectorworks の階段の手摺は大きく分けて2種類あり、壁に取り付けるタイプの手摺を「主手摺」、フレームに支えられて取り付けるタイプの手摺を「補助手摺」と呼びます。
今回は主手摺は設定せず、補助手摺のみを設定していきます。
「手摺」タブ内のパラメータ項目の「主手摺」が「なし」、「補助手摺」が「表示」になっている状態で、「位置」や「上部手摺」の項目を操作して任意の数値を入れてみましょう。
以上の設定ができたら、階段の設定は完了です。OKボタンでダイアログを閉じます。
配置した階段は、『セレクション』ツールで配置位置の調整が可能です。階段の折れの向きを変更したい場合には『オブジェクト情報』パレットの「表示方向」項目で、左右の向きを変更できます。
また、階段全体の向きを変更(右方向に90°回転させたい、など)する場合には、『加工』メニュー >『回転』の「右90°」や「左90°」コマンドなどを使用して向きを調整してください。
配置した階段が、3Dでどのような形状になっているかを『右斜め後方』ビューなどに変更し、確認してみましょう。
1Fの壁、床が作成できました。
次は窓やドアなどの建具を設置していきます。
設定確認
- ビュー: 2D/平面
- アクティブレイヤ: 1F
- レイヤオプション: ほかをグレイ表示/スナップ
窓やドアといった建具は、『窓』ツールや『ドア』ツールといった専用のツールが用意されています。今回はこれらの専用ツールを使用して建具を設定していきましょう。
ドアツール
『ドア』ツールは、『ツールセット』パレットの『建物』ツールセットに搭載されています。
『ドア』ツールは、壁にドアを簡単に挿入することができるツールです。ドアを壁に挿入すると、ドアの大きさに合わせて自動的に壁を切り欠いてくれます。
『ドア』ツールの配置方法はシンプルです。『ドア』ツールを選択して、ドアを配置したい壁図形の任意の位置にマウスカーソルを動かし、クリックすると位置が決まります。2回目のクリックは開き方向の選択になります。希望の開き方向を選択してクリックするとドアの位置と開き方向が決定され、壁にドアが挿入されます。
配置したドアにはさまざまな設定を行うことができます。
設定はドアオブジェクトを選択した状態で、『オブジェクト情報』パレットから行います。
ドアの高さ、幅
まずはドアの大きさを設定しましょう。
幅と高さに任意の数値を入力することで幅と高さの設定を自由に設定することができます。
ドアの形式
次に、ドアの形式の変更です。
ドアの開きの種類は「形式」項目から設定することが可能です。初期設定では「開き戸」となっています。「形式: 開き戸」となっているプルダウンをクリックすると、別の開き形式に変更できます。
ドアの形式は、開き戸以外にも両開きや引き戸、バーンドアなど、ドアの形状に合わせて設定することが可能です。
ドアの大きさや開きの形式の設定ができたら、配置したドアを3Dで見てみましょう。
ビューを一時的に「斜め右」などの画角に設定すると、壁に挿入されたドアが表示され、現在の3D形状を確認することができます。3Dビュー状態でも『オブジェクト情報』パレットより変更することができますので、希望の形になるように色々な設定を行ってみましょう。
また、「3D時に開く」項目にチェックを入れることで、設置したドアを開くことが可能です。見せ方により表示を変えてみてください。
『ドア』ツールについて今回紹介している内容は、設定のごく一部分になります。より詳細な内容を設定したい場合には、『オブジェクト情報』パレットの「詳細設定」ボタンより表示されるドア設定ダイアログから行ってください。詳細設定の内容につきましては Vectorworks ヘルプ ドア設定 をご参照ください。
1Fの窓を設置していきます。
設定確認
- ビュー: 2D/平面
- アクティブレイヤ: 1F
- レイヤオプション: ほかをグレイ表示/スナップ
『窓』ツールも、『ツールセット』パレットの建物ツールセットの中に搭載されています。
窓ツール
『ドア』と同様に、『窓』ツールは壁に窓を簡単に挿入することができるツールです。窓を壁に挿入すると、窓の大きさに合わせて自動的に壁を切り欠いてくれるツールです。
『窓』ツールの配置方法は、『ドア』ツールとほぼ同様です。『窓』ツールを選択して、窓を配置したい壁図形の任意の位置にマウスカーソルを動かし、クリックすると位置が決まります。2回目のクリックは開き方向の選択になります。希望の開き方向を選択してクリックすると窓の位置と開き方向が決定され、壁に窓が挿入されます。
配置したドアにはさまざまな設定を行うことができます。
設定はドアオブジェクトを選択した状態で、『オブジェクト情報』パレットから行います。
窓の高さ、幅
まずはドアの大きさを設定しましょう。
幅と高さに任意の数値を入力することで幅と高さの設定を自由に設定することができます。
窓の形式
次に、窓の開き形式の変更です。
窓の開きの種類は「形式」項目から設定することが可能です。初期設定では「開き窓」となっています。「形式: 開き窓」となっているプルダウンをクリックすると、別の開き形式に変更できます。
窓の形式は、開き窓以外にも突き出しや引き違い、はめ殺しなど、窓の形式に合わせて設定することが可能です。
窓の大きさや開きの形式の設定ができたら、配置した窓を3Dで見てみましょう。
ビューを一時的に「斜め右」などの画角に設定すると、壁に挿入された窓が表示され、現在の3D形状を確認することができます。3Dビュー状態でも『オブジェクト情報』パレットより変更することができますので、希望の形になるように色々な設定を行ってみましょう。
また、「3D時に開く」項目にチェックを入れることで、設置した窓を開くことが可能です。見せ方により表示を変えてみてください。
窓は複数箇所に設置してみてください。通り芯に合わせて設置することで、上下階の挿入位置が揃います。
『窓』ツールについて今回紹介している内容は、設定のごく一部分になります。より詳細な内容を設定したい場合には、『オブジェクト情報』パレットの「詳細設定」ボタンより表示されるドア設定ダイアログから行ってください。詳細設定の内容につきましては Vectorworks ヘルプ 窓設定 をご参照ください。
1Fが作成できました。続けて2Fを作成していきます。
まずは1Fの時と同じようにアクティブレイヤを「2F」に変更しましょう。
設定確認
- ビュー: 2D/平面
- アクティブレイヤ: 2F
アクティブレイヤを変更したら、1Fと同様に壁から作図していきます。
見本のモデルでは2Fの形状は一部1Fから変更し、バルコニーを設けますので、通り芯をなぞるように2Fの形状に合わせて壁を作成していきます。
基本的な要領は1Fの作成とほぼ変わりません。
壁が作成できたら、ビューを一時的に「斜め右」にしてモデルを確認してみましょう。
1Fの壁の上に2Fの壁があるのが確認できます。これは最初に設定した「レイヤの高さ」のおかげです。レイヤの高さを壁の高さと合わせてあるためピッタリ1Fの壁に乗るような形でモデリングされています。
モデルの高さの確認ができたらビューは「2D/平面」に戻し、1Fと同様に窓を設置しておきましょう。
2F部分に手摺を設置します。
設定確認
- ビュー: 2D/平面
- アクティブレイヤ: 2F
- レイヤオプション: ほかをグレイ表示/スナップ
今回はバルコニーに手摺を設置します。
『階段』ツールではツール内設定に手摺オプションがありましたが、今回は専用の『手摺』ツールを使用します。
『手摺』ツールは、『ツールセット』パレットの『建物』ツールセットにあります。
『手摺』ツールには多角形ツールと同様の使い方ができる頂点モードがあります。頂点モードに切り替えて始点でクリックし、終点となる箇所でダブルクリックを行うと、作図が完了します。
また、始点から終点までの間にコーナー部分などがあれば、適時クリックして頂点を増やせます。
「2F」レイヤの手摺が必要な箇所に作図してみてください。
『手摺』ツールも、今までのドアや窓、階段といった図形と同様に、『オブジェクト情報』パレットからさまざまな調整を行うことができますが、今回は一旦このままでも問題はありません。
配置できたら、『斜め右』ビューなどに変更し、確認してみてください。
最後に、屋根を作成します。
設定確認
- ビュー: 2D/平面
- アクティブレイヤ: 屋根
- レイヤオプション: ほかをグレイ表示/スナップ
屋根の作成は、『建築』メニュー内の『屋根作成』コマンドや『屋根面』コマンドを使う方法がありますが、今回は簡略化していますので、『スラブ』ツールを使用して陸屋根を作成します。
アクティブレイヤを「屋根」レイヤに切り替え、『スラブ』ツールの『頂点』モードで壁の内側の頂点を順にクリックし、終点は始点をクリックすることでスラブを作成します。
スラブの作成ができたら厚さの調整を行います。
スラブを選択した状態でオブジェクト情報パレットの構成ボタンをクリックし、壁の厚さを変更したのと同じ手順でスラブの厚さを修正します。
今回の屋根スラブの厚さは「150」mmと設定します。
形状と厚みの設定ができたら、スラブを配置する高さを調整します。オブジェクト情報パレットより『Z』の項目に「-50」と入力します。そうすることで2Fの壁の高さより50mm低い位置にスラブを設置することができます。
バルコニー部分の屋根の高さを変更したい場合、本体部分の屋根とバルコニーの屋根をそれぞれ別々に作成し、高さの違いを表現することが可能です。
実際の陸屋根には、水勾配のないフラットな屋根はありません。
片流れ、切妻や入母屋などの形状で屋根を作成する場合は、前述の『屋根作成』コマンドや『屋根面』コマンドを使用することでモデリングが可能です。
『屋根作成』コマンドや『屋根面』コマンドの使い方については、 Vectorworks ヘルプ 屋根面 をご参照ください。
建築空間としての形状がある程度でき上がってきました。
続けて、Vectorworks の内蔵リソースを使用して家具などを設置してみましょう。
設定確認
- ビュー: 2D/平面
- アクティブレイヤ: 1F もしくは 2F
- レイヤオプション: ほかをグレイ表示/スナップ
Vectorworks 上で利用できる素材(建具や家具などのオブジェクト、イメージやテクスチャなどの素材)のことを、「リソース」と呼びます。また、Vectorworks に収録されているリソースのことを「リソースライブラリ」と呼びます。
リソースは、『リソースマネージャ』から検索して利用できます。「リソースマネージャ」の右上の検索窓に「ソファ」と入力すると、ソファに関連する内蔵リソースが表示されます。
『リソースマネージャ』で気に入ったものが見つかったら、図面上に配置してみましょう。
リソースを配置するには、『リソースマネージャ』の任意のリソース上でダブルクリックし、そのまま作図領域にマウスカーソルを動かしていくと、マウスカーソルにソファのシルエットが追従してきます。そのまま、配置したい箇所で一回クリックで位置が決まります。2回目のクリックで配置する向きを決めます。配置したい方向にマウスカーソルを動かしクリックすると配置が完了します。
上記の操作を参考に、ソファだけでなく例えばオフィス用の机であったり、椅子、PCモニターなど空間のディティールアップのために好みのリソースを検索して配置してみてください。
また、どこのレイヤに配置するのかも意識しながら配置してみましょう。
設定確認
- ビュー: 斜め右 など
- アクティブレイヤ: 1F
- レイヤオプション: ほかをグレイ表示/スナップ
ここまでで、壁、ドアや窓などの建具、階段に手摺など、建築空間を構成するモデルを Vectorworks の機能で作成してきました。
ほぼ2Dビューでの操作で配置などを行ってきましたが、「斜め右」などの3Dビューで確認すると、スチレンボードで作成した模型のようなホワイトモデルの3Dモデルが出来上がっているはずです。
このように Vectorworks では2D操作によって同時に3D形状も作成できることが魅力の一つです。
各種のビューに切り替えると、正面だけでなく側面や後方からも確認することができるほか、『基本』パレットの『フライオーバー』ツールで360°自由な画角でモデルを確認することができます。
ここまでで、基本的なモデル作成は完了しました。次項からは3Dパースを作成する「レンダリング」に進みます。
ここまでに作成、配置したモデルに、色や質感を持たせてリアルに表現する工程となります。
レンダリングしてみよう
レンダリング(Rendering)とは、一般的に「データを処理/演算して出力すること」を指します。
Vectorworks では、作成した3Dモデルを元に、設定されたテクスチャや光源などの効果を計算してフォトリアルな2D画像を作成することをレンダリングと呼んでいます。
3Dパースの作成や、陰線消去した断面図を作成する際などに利用します。
レンダリングは、レンダリングの種類(処理方法)や設定のほか、モデルの形状やテクスチャ(表面質感設定)、光源(太陽や室内などのライティング)などの各種設定によって、出力結果や処理時間が大きく変わります。
よって、レンダリングに正解はありません。意図通りのレンダリングを行うには、テクスチャやライティングなどの調整を行いつつ、トライ&エラーを繰り返し、理想の結果に近付ける作業が必要です。
レンダリングの手法は多岐に渡り、より高品質に、よりリアルさを追求するには試行錯誤が必要となるため時間と手間がかかります。そのため今回はレンダリングにあたっての基本的な操作や設定などをご紹介します。
また、レンダリングのテクニックなどについては Vectorworks Navi レンダリング使い方ガイド で紹介しています。合わせてご参照ください。
3Dモデルの表面に色を付ける方法は、大きく分けて2種類あります。
1つは『属性』パレットから面に色を付ける方法です。例えば面色を赤色に設定すれば、3Dモデルは赤で表現されます。
もう1つは「テクスチャ」を3Dモデルの表面に貼り付ける方法です。
実際の建築物などは単一色であることは少なく、木材を用いたフローリングや、コンクリートの壁といったように、素材による質感表現が求められます。
「テクスチャ」とは質感のことです。例えば、金属やプラスチック、ガラス、木材などさまざまな素材がありますが、これらの素材は各々質感が異なります。こういった質感を表現するためにテクスチャを利用します。テクスチャ機能を利用することで、3Dモデル表面に現実感のある質感を与えることができます。
テクスチャは Vectorworks にリソースとして用意されているものも多数ありますし、必要に応じて自身で作成することもできます。
テクスチャは、設定が多岐に渡るため奥が深く、ここではすべてを説明することはできませんが、リソースデータを使う方法と、自身でオリジナルのテクスチャを作る方法を簡単に紹介します。
Vectorworks で用意されているテクスチャ
リソースデータとして用意されているテクスチャは、『リソースマネージャ』から利用可能です。
例えば、フローリングに使うテクスチャを探す場合『リソースマネージャ』の右上にある検索窓に「木材」と入力すると、木目の床材に関連するリソースデータがリストアップされます。
この中からテクスチャのみを探すには、検索窓の横にある「すべてのリソース」と書かれているプルダウンをクリックし、「テクスチャ」を選択すると、テクスチャのみ表示されます。
好みに合うテクスチャが見つかったら、3Dモデルに直接ドラック&ドロップするとテクスチャを適用できます。
また、テクスチャの適用は『基本』パレットの中に入っている『テクスチャ』ツールを使用して行うこともできます。
『テクスチャ』ツールでは、モードによってモデルの全体に割り当てたり、選択した面のみに割り当てるといったことが可能です。
オリジナルのテクスチャを作る方法
テクスチャを自身で作る場合も、『リソースマネージャ』から行います。
『リソースマネージャ』の左下にある「新規リソース」ボタンをクリックすると、リソースの作成ダイアログが表示されます。ここで「テクスチャ」にチェックを入れて作成ボタンをクリックすると、テクスチャの作成ダイアログが表示されます。
テクスチャの作成ダイアログでは大きく分けて4つの項目を設定可能です。
- 色属性: テクスチャの基本的な色を設定する項目です。
単色の場合は「カラー」を、手持ちの画像を使用したテクスチャを作成する場合は「イメージ」を設定します。 - 反射属性: テクスチャが光をどう反射するかを設定する項目です。
3D図形の表面で光を反射させたい場合は、プルダウンからミラーやプラスチックなど質感に近い項目を選択します。 - 透明属性: ガラスのように透明にしたい場合に設定する項目です。
- バンプ属性: 凸凹した表現やザラザラした表現にしたい場合に設定する項目です。
上記の項目を設定して、自身の表現したいテクスチャを作成していきます。
各項目によってさまざま設定がありますので、実際に操作してさまざまな表現をお試しください。
適用したテクスチャが表示されない場合
レンダリングが『ワイヤーフレーム』の状態では、適用したテクスチャは表現されません。
現在選択されているレンダリングは、『ビュー』メニュー >『レンダリング』から確認できます。
ここで『ワイヤーフレーム』以外のものを選択してください。
レンダリングはさまざまな種類があり、表現方法や処理速度もさまざまですが、ひとまずここでは処理の軽い『シェイド』レンダリングや『簡易Renderworks』でお試しいただくことをお勧めします。
押し出しモデルや壁などは『テクスチャ』ツールを使って設定しますが、ドアや窓サッシなどの建具オブジェクトにテクスチャを割り当てたい場合は、「クラス設定」を使って設定します。
操作していくための事前準備として、まずサッシ用のテクスチャを作ってみましょう。
テクスチャの作成方法
『リソースマネージャ』を開き、左下の「新規リソース...」ボタンを押します。「リソースの作成」ダイアログが開きますので、「テクスチャ」を選択して「作成」ボタンをクリックします。
「テクスチャの編集」ダイアログが開きます。ここで、必要なテクスチャを作成/設定することができます。
今回はアルミシルバーのような金属テクスチャにします。以下の設定を参考にテクスチャを設定してください。
- 名前: サッシ-アルミシルバー
- 色属性: カラー 黒系統の色
- 反射属性: メタリック
- メタリックを選択すると、「メタリックシェーダ編集」ダイアログが表示されるので、プリセットで「アルミニウム」を選択。
- 透明属性: なし
- バンプ属性: なし
以上の設定が完了したら、「OK」ボタンをクリックしてダイアログを閉じます。
現在開いているファイル内に、「サッシ-アルミシルバー」という名称のテクスチャが作成されました。
クラス設定を使用して建具部材にテクスチャを適用する方法
クラス設定によってテクスチャを適用する方法はいくつかありますが、窓やドアなどのように部材毎にクラスを割り当てる場合は、『オブジェクト情報』パレットの「詳細設定」ボタンからクラス設定を管理するのがやりやすい方法です。
今回は窓オブジェクトのテクスチャ設定を例に手順をご紹介します。
配置済みのすべての窓オブジェクトを一括設定したいので、まず『基本』パレット内の『類似図形選択』ツールを使用します。
『類似図形選択』ツールを選択したら、窓オブジェクトの上でクリックすると、すべての窓オブジェクトが選択状態になります。
この状態で、『オブジェクト情報』パレットの「詳細設定」ボタンをクリックします。
右側のペインの中から「マテリアルとクラス」を選択します。「マテリアルとクラス」ペインでは、現在選択中の窓オブジェクトのクラス設定状況が一覧で表示されます。
窓オブジェクトは複数の部材で構成されており、例えばガラスのテクスチャを変えたい場合にはパーツ名「ガラス」となっている項目をクリックすると、その部材のクラスやテクスチャ設定などが表示されますので、ここでテクスチャを任意のものに変更することができます。
クラス設定でテクスチャを設定するメリットは、例えば窓などのように建物で複数配置する建具は色や素材が統一されるのが一般的です。
そういった場合に、建具をひとつずつ設定していくのは非常に手間で、また変更が発生した際は再度同じ手間が発生します。
クラス設定でテクスチャを設定しておくことで、同じクラスが割り当てられている部材はクラス設定を変更するだけで複数の建具に同じ変更が反映されます。
逆に、1箇所だけ別の色のサッシにしたい、といった場合は、それ専用のクラスを作成すればよいのです。
今回は窓のサッシ部分のテクスチャを設定しますので、サッシ部分のパーツである「建具枠(内側/外側)」「框(内側/外側)」「額縁(内側/外側)」の6つをすべて選択します。
「クラス」項目の下矢印をクリックし、「新規クラス」を選択して新しいクラスを作成してください。
「クラスの作成」ダイアログが表示されますので、名前に「サッシ」と入力し、「作成時に編集ダイアログボックスを表示」オプションにチェック入れて「OK」ボタンをクリックします。
続けて「クラスの編集」ダイアログが表示されますので、左側のペインから「テクスチャ」を選択し、「属性を使う」オプションにチェックを入れます。
続けて、「オブジェクトや構成要素のテクスチャ」欄で、「テクスチャ」オプションにチェックを入れ、すぐ下のテクスチャ選択項目をプルダウンして先ほど作成した「サッシ-アルミシルバー」テクスチャを選択します。
「OK」ボタンをクリックして全ダイアログを閉じます。
3Dビューで確認すると、窓サッシの部分が白色ではなくテクスチャが割り当てられて表現されます。
モデルの形状が出来上がり、テクスチャの割り当ても済みました。
続いては3Dパースのためのアングル(画角)を設定していきます。
3D空間でアングル(画角)を決めることは、3D空間にカメラを設置して、そのカメラやレンズの設定を行うようなものです。
Vectorworks には、このアングル設定時に使用する専用機能として『レンダーカメラ』ツールがあります。
『レンダーカメラ』ツールは、『ツールセット』パレット内の『ビジュアライズ』ツールセットに搭載されています。
『レンダーカメラ』ツールでは、専用のカメラ図形を配置し、カメラビューを設定します。
配置されたレンダーカメラをアクティブにすることで、後から画角や視線の高さなどの3Dビューを簡単に変更できます。
『レンダーカメラ』ツールの使い方は簡単です。ツールを選択したらカメラを配置する場所で1回目のクリック、カメラの向きを決めて2回目のクリックで、レンダーカメラオブジェクトを設置します。
初回配置時はオブジェクトの設定ダイアログが表示されるので、そのまま「OK」ボタンを押してダイアログを閉じます。
図面上にレンダーカメラオブジェクトが配置されます。
これを選択し、『オブジェクト情報』パレットの「カメラビューをアクティブにする」をクリックしてみましょう。
設置したカメラの設定画角で画面表示されます。画角を調整したい場合は、『オブジェクト情報』パレットの「カメラビューの調整」ボタンをクリックすることで、ビューの調整ができます。
また、『オブジェクト情報』パレットからは、投影方法や縦横比なども設定することができますので、好みの画角や投影方法など設定してみてください。
アングルが決まったら、「登録ビュー」に登録しておくことをお勧めします。
登録ビューは、画角やレイヤ/クラスの表示設定などを登録しておき、簡単にその設定を呼び出すことができる便利な機能です。
任意の画面表示状態で、画面左上の「表示バー」にある「登録ビュー」ボタンをクリックし、「新規登録ビュー」をクリックします。
「ビューを登録」ダイアログが表示され、さまざまなオプションが表示されますが、ひとまず名前のみ設定して(「パース1」など、何のビューか分かりやすい名称をつけてください)、「OK」ボタンを押してダイアログを閉じます。(後からでも変更可能です。)
これで登録ビューの設定は完了です。
いったんビューを「2D/平面」に変更し、登録したビューを呼び出してみましょう。
先ほどビューを登録した時のように、「表示バー」の「登録ビュー」ボタンをクリックすると、先ほど登録したビューがリストに表示されています。クリックするとビューが呼び出されて、画面表示が切り替わります。
3Dパース以外にも、2D平面図用のビューを登録することもできます。ご活用ください。
いよいよ本格的にレンダリングをしてみましょう。
今までの工程では、「シェイドレンダリング」で3Dモデルが表示されていました。
「シェイドレンダリング」は処理速度重視の簡易的なレンダリング方式になります。
レンダリングにはいくつか種類がありますが、今回は光の反射や影の表現、映り込みなどをリアルに計算する(その代わり処理が重めで多少時間のかかる)『仕上げRenderworks』レンダリングを行います。
前項で設定したレンダーカメラのビューでレンダリングを行います。先ほどのレンダーカメラのビューをアクティブにしてください。
『ビュー』メニュー >『レンダリング』>『仕上げRenderworks』をクリックします。
『仕上げRenderworks』を選択すると、処理が始まります。デザインレイヤでのレンダリン中は他の作業はできません。(他の操作を行うと、レンダリングは再計算となります)
レンダリングが完了するまで、Vectorworks を操作しないようにしてください。
レンダリングが完了すると、金属の表現やガラスの反射などが行われたモデルが表示されるはずです。
ただし、今回は光源や背景放射光といったライティング設定を行っていませんし、テクスチャも詳細調整はしていません。このため「思ったよりも…」と感じるかもしれません。
より高品位なレンダリングを行いたい場合は、 Vectorworks Navi レンダリング使い方ガイド をご参考ください。
レンダリングにはいくつかの種類があります。
よく使うレンダリングとして、以下の4種類を紹介します。
- ワイヤーフレーム: 「2D/平面」ビュー時や、ここから3Dビューに切り替えた際は基本的にワイヤーフレームの状態です。図形が線で構成されたレンダリング方式です。
- シェイド: テストレンダリング、形状や色の把握や確認をする際に使われる簡易的なレンダリング方式です。
- 仕上げRenderworks: 一般的な3Dパースでよく使われるレンダリング方式です。影の表現や光の反射、物体の写り込みなどを計算してフォトリアルなレンダリングが可能です。
- 陰線消去: 3Dモデルを2D的に表現するレンダリング方式です。例えば、3Dモデルを立面で表示させた状態でこのレンダリングを行うと、立面図として活用できます。手前の物体で見えなくなっている奥側の線などを表示しないようにしますが、表示させたい場合は「陰線表示」レンダリングを使用します。
これらの他にも複数のレンダリング方式があり、それぞれ表現や処理方式、計算時間などが異なります。それぞれの特性を理解し、理想の表現ができるようにデータ調整にチャレンジしてみてください。
シートレイヤとは
Vectorworks 上のプレゼンテーションボードだと考えてください。
3Dモデルから、平面図や断面図を作成して配置したり、3Dビューのビューポート(後述)や建具表などをレイアウトして、プレゼンボードを作ることができます。
なお、シートレイヤの縮尺は1:1となり、シートレイヤに直接図面を作図することは想定されていません。
ビューポートとは
「参照窓」機能です。
元図を「ビューポート」で参照し、これをシートレイヤ上にレイアウトして、プレゼンボードを構成します。
例えば、3D建築モデルを上から各階ごとにビューポート化して、各階の平面図を作成。3D建築モデルの外観を東西南北の方向から参照して立面図を作成し、さらに3D建築モデルを任意の箇所で切断した断面図を作成する、といったことが可能です。
1つの3Dモデルから、平面図、立面図、断面図、展開図などを出力することができます。
また、ビューポートはそれぞれ個別に任意の縮尺設定やレンダリングなどを行えますので、平面図は1/50、立面図、断面図は1/100のシェイドレンダリング、3Dパースは仕上げRenderworksで、といったような表現ができます。
ビューポートは参照窓のため、デザインレイヤ上の元図に変更があれば、ビューポートにも変更点が反映されるという利点もあります。
シートレイヤやビューポートにはさまざまな設定があるため、何をどう設定すればよいか分からない、という状況に陥る可能性もありますが、ひとまず細かい設定などは気にせず、まずは使ってみて慣れるところから始めることをお勧めします。
まずは試しにビューポートを作成してみましょう。
- デザインレイヤの3Dモデルを任意のアングルで表示します。(例: 立面図なら「前」ビュー)
- 『ビュー』メニュー >『ビューポートを作成』をクリック。
- 表示されるダイアログを、すべて「OK」ボタンをクリック。
- ビューポートがシートレイヤ上に配置されます。
上記の操作で、シートレイヤ上にビューポートが作成されます。
同じ要領で、パース用に設定した3Dビューでもビューポートを作成してみましょう。
登録ビューから3Dビューを呼び出し、『ビュー』メニュー >『ビューポートを作成』をクリックし、その後の設定はすべてそのまま「OK」です。
作成されたビューポートは、図形として選択し『オブジェクト情報』パレットからさまざまな設定を変更可能です。
縮尺やレンダリング方式などの変更をお試しください。
TIPS: ビューポート/シートレイヤについて学習したい
ビューポート/シートレイヤの機能は多岐にわたり、設定によって表現の幅を増やしたり、作業効率を上げることができる機能です。
ビューポート/シートレイヤの概念や活用方法のための学習資料として、「Vectorworks Hello,ViewPort」をご用意しています。あわせてご参考ください。
レンダリングに関する非常に重要な要素として、光源があります。
光源にはさまざまな種類があり、一概にこれをこう使えばよい、といった正解はありませんが、今回は基本設定として「背景放射光」と「背景テクスチャ」の設定をお試しください。
これら2つの環境光で、画面全体の明るさを調整していきます。
背景放射光
背景放射光とは、簡単に言えば太陽光を表現する際の設定になります。
『ビュー』メニュー >『背景放射光...』から設定できます。
背景放射光の設定で重要となるのは、「間接光」と「環境光の設定」の2つです。
間接光は、光の反射回数の設定です。現実世界では光は制限なく無限に反射、拡散していますが、コンピューター上でそれを計算すると非常に重い処理となります。そのため、何回まで反射計算を行うかを設定します。
間接光のプルダウンを選択すると、反射回数を「なし」「2回」「3回」「4回」「16回」の5種類から選択することができます。
反射の回数が増えれば増えるほど高品質な結果を得られますが、その分レンダリングにかかる時間も長くなります。
図面の状況にもよりますが、3回もしくは4回の設定でも、そこそこの計算時間で綺麗なレンダリングを得られると思われます。
背景テクスチャ
文字通り、3Dモデル空間の背景、およびその背景からの環境光を表現するためのテクスチャです。
『ビュー』メニュー >『背景テクスチャ設定...』から設定できます。
一例として、屋外パースで背景テクスチャを夕方にした場合、3Dモデルの背景は夕暮れ時となり、これに応じたライティングが適用されます。
また例えば、屋内パースで背景テクスチャを日中にした場合、部屋の窓からは日差しが入り、屋外風景は昼間の表現となります。
晴天や、雲の多い曇り空、夕焼けなど、見せたいシーンに合わせて背景テクスチャの設定をお試しください。
3Dモデルから図面を取り出そう
作った建物モデルから、各階の平面図を取り出してみましょう。
各種図面はビューポートで作成します。
設定確認
- ビュー: 2D/平面
- アクティブレイヤ: 1F
- レイヤオプション: アクティブのみ表示
3Dモデルを必要なレイヤのみ表示させて、必要な図面を取り出していきます。
まずは1Fの平面図から作成を行います。
『レイヤオプション』で『アクティブのみ表示』に設定することで、1Fレイヤのみ表示することができますので、この状態でビューポートを作成します。
ビューポートの作成は、『ビュー』メニュー >『ビューポートを作成』をクリックします。
「ビューポートを作成」ダイアログが開くので、そのまま「OK」ボタンをクリックすると、シートレイヤに1F平面図を投影したビューポートが作成されます。
同じ要領で2Fの平面図を作成しましょう。
設定確認
- ビュー: 2D/平面
- アクティブレイヤ: 2F
- レイヤオプション: アクティブのみ表示
アクティブレイヤを、シートレイヤから2Fレイヤに切り替え、1Fと同様にビューポートを作成します。
このように、3Dモデルを元にして、複数の必要な図面を素早く取り出すことができます。
また、3Dモデルからビューポートを使って図面を取り出すことのメリットとして、仕様変更などで図面に変更が加わった際の対応が挙げられます。
従来の2D CADソフトウェアでは、必要な図面をそれぞれ独立した形で作成していましたが、図面に変更があった場合、各図面で該当する箇所を探し出し、必要な修正をそれぞれ行う必要がありました。
ビューポートは前述の通り参照窓のため、元図を参照して表示しています。このためビューポートを使って3Dモデルから図面を取り出した場合、元図となる3Dモデルを修正することでビューポートにも自動反映されるため、修正の手間が大幅に簡略化されます。
ビューポートを使った図面化は、慣れるまでは戸惑うかもしれませんが、2D CADソフトウェアにない強みとなるので、ぜひご活用ください。
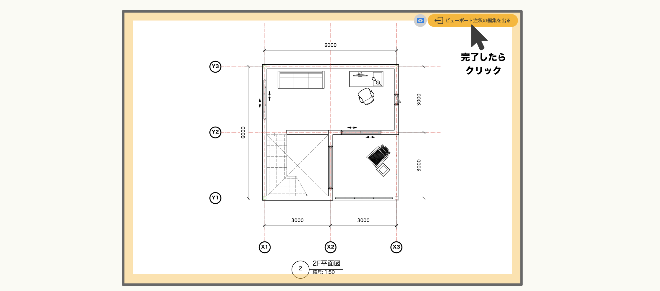
前項で取り出した1Fと2Fのビューポートに、寸法や室名など、図面として必要な情報を入力していきましょう。
寸法や部屋名などをデザインレイヤ上で入力、管理する方法もありますが、今回は「ビューポート注釈」という機能を利用して作成します。
ビューポートの「注釈」とは、ビューポートの表示内容に対して、必要情報を追記できる機能です。
注釈の記入方法は簡単です。注釈を加えたいビューポート図形をダブルクリックすると、」ビューポートを編集」ダイアログが表示されますので、「注釈」にチェックを入れて「OK」ボタンをクリックします。
作図領域の縁がオレンジ色の帯でハイライトされる状態になったら、注釈の編集画面に入っている状態です。
ここで記入した内容はデザインレイヤには反映されず、ビューポート図形にのみ追記されます。
注釈の編集画面に入ったら、必要な箇所に寸法を入力していきましょう。
寸法を入力するには、『基本』パレット内の『縦横寸法』ツールを使用します。
『縦横寸法』ツールを選択したら、寸法を記入する始点位置で1回目のクリック、続けて終点となる位置で2回目のクリックをします。最後に寸法値を表示したい位置まで引き延ばして3回目のクリックをすると、寸法線が入力されます。
また、連続した寸法を記入したい場合は、『縦横寸法』ツールの「直列寸法」モードを使いましょう。
「直列寸法」モードでは、3回目以降のクリックで連続した寸法を記入できます。連続寸法の最後の箇所でダブルクリックすれば寸法が確定されます。
寸法記入が済んだら、続けて室名なども注釈で入れてみましょう。
今回は『文字』ツールを使用します。『文字』ツールは、『基本』パレット内にあります。
『文字』ツールで文字を配置したい箇所でクリックすると、文字入力ウインドウが表示されます。任意の文字を入力したら、「esc」キーを押して文字列を確定します。
入力後の文字を編集したい場合は、文字列を『セレクション』ツールでダブルクリックすることで再編集できます。文字のサイズやフォントの変更などは『オブジェクト情報』パレットから行ってください。
寸法、部屋名などの入力が完了したら、作図領域の右上に表示されている「ビューポート注釈の編集を出る」ボタンを押してください。
注釈編集画面が終了し、通常のシートレイヤに戻ります。ビューポート内に入力した注記が表示されていることと、元図となるデザインレイヤには注記の影響がないことをご確認ください。
次は各方位の立面図を取り出してみましょう。
『レイヤオプション』を「ほかを表示/スナップ/編集」にすることで、アクティブレイヤ以外のレイヤも表示することができます。
設定確認
- ビュー: 前 など
- アクティブレイヤ: 1F
- レイヤオプション: ほかを表示/スナップ/編集
今回の3D建物モデルを、「前」ビューから見た「南側立面図」、右ビューから見た「東側立面図」という形で立面図を取り出すことができます。
まずは「前」ビューに切り替えてビューポートを作成し、南側立面図を作ってみましょう。
また、今回は前項の平面図とは違うシートレイヤにビューポートを作ります。
『ビュー』メニュー >『ビューポートを作成』コマンドを実行したら、ビューポート作成ダイアログの「作成するレイヤ」で「新規シートレイヤ」を選択し、任意の名称の新しいシートレイヤを作成して、ここに立面図をまとめてみてください。
南側の立面図ができたら、その他の方位の立面図も作ってみてください。右、左、後ろの各ビューでビューポートを作り、シートレイヤ上に配置しましょう。
平面図、立面図、と作成してきました。次は断面図を取り出してみましょう。
設定確認
- ビュー: 2D/平面
- アクティブレイヤ: 1F
- レイヤオプション: ほかを表示/スナップ/編集
Vectorworks Architect には、断面図作成用の専用機能として『断面ビューポートを作成』コマンドが搭載されています。
「断面ビューポート」は、2D平面図に断面指示線を作図することで、そのラインに応じた断断面図を自動的に作成する機能です。
「2D/平面」ビューの状態で、『ビュー』メニューの『断面ビューポート』をクリックします。
マウスカーソルが図形入力状態になりますので、断面線の始点となる箇所で1回目のクリック、終点の箇所で2回目のクリックをします。
最後に、記入したラインのどちらの方向の断面を表示するかをダブルクリックで指定すると、「断面ビューポートを設定」ダイアログが表示されます。
立面図ビューポート作成時と同様に、「作成するレイヤ」で「新規シートレイヤ」を選択し、任意の名称の新しいシートレイヤを作成して、「OK」ボタンをクリックします。
指定したシートレイヤに、断面図のビューポートが作成されます。
室内展開図を取り出してみましょう。
設定確認
- ビュー: 2D/平面
- アクティブレイヤ: 1F、もしくは2F
- レイヤオプション: ほかを表示/スナップ/編集
Vectorworks Architect には、室内の展開図作成用の専用機能として『室内展開図ビューポートを作成』コマンドが搭載されています。
「室内展開図ビューポート」は、同一レイヤ上に配置されている壁オブジェクトを参照して、簡単に4面の室内展開図を作成する機能です。
従来の2D CADソフトウェアでは、室内展開図は部屋数が増えれば増えるほど図面枚数が増え、窓やドアなどの仕様変更が発生するたびに影響のある箇所の修正が発生していました。
Vectorworks Architect では、壁ツールを使用して3Dモデルを作成し、室内展開図ビューポート機能を活用することによって、展開図の作成・修正の手間を大幅に減らすことができます。
室内展開図ビューポートの作成方法は、2D/平面ビューの状態で、室内展開図を作成したい部屋の壁が置かれているレイヤをアクティブにします。今回は、「1F」レイヤもしくは「2F」レイヤです。
『ビュー』メニューの『室内展開図ビューポートを作成』コマンドをクリックすると、マウスカーソルが図形入力状態になりますので、室内展開図を作成したい部屋の中心で位置決めの1回目のクリック、そしてどの角度で作成するかを2回目のクリックで決定します。
2回目のクリックを終えると、「室内展開図ビューポートを作成」ダイアログが表示されます。
今までと同様に、「作成するレイヤ」で「新規シートレイヤ」を選択し、任意の名称の新しいシートレイヤを作成して、「OK」ボタンをクリックします。
指定したシートレイヤに、室内展開図ビューポートが作成されます。
室内展開図ビューポートは、前述の通り壁の幅や高さを自動的に参照しますが、設定によって断面線の調整なども可能です。
室内展開図ビューポートの詳細につきましては、 Vectorworks ヘルプ 室内展開図ビューポートを作成する をご参照ください。
シートレイヤ上のビューポートをレンダリングする場合、初期設定では解像度が低くレンダリング結果が粗く表示される場合があります。
シートレイヤには、シートレイヤごとに設定されている解像度(DPI)があり、この数値を変更する必要があります。
『ツール』メニュー >『オーガナイザ』>『シートレイヤ』タブを開き、ビューポートレンダリングを行うシートレイヤを選択して「編集」をクリックします。
「シートレイヤの編集」ダイアログが表示されますので、「ラスタレンダリングDPI」の右側の項目でシートレイヤの解像度を調整することができます。
ラスタレンダリングDPIは数値を高くすればするほど解像度が高くなるため、高品位なレンダリング画像となりますが、DPIが高いほどレンダリング時間、データ容量、PCにかかる負荷なども増加します。
そのため、レンダリングの品質と処理負荷のバランスを考慮して設定してください。
購入/トレーニング/初回起動サポート/その他
家電量販店やオフィス事務機器などを取り扱う販売店、オンラインストアよりご購入いただけます。
詳しくは下記ページをご覧ください。
サブスクリプション製品をご購入検討の場合、ご購入窓口によりお申し込み手順が異なります。
詳しくは以下記ページをご参考ください。
その他、製品購入のご相談などにつきましては Vectorworks Japan 営業部までご連絡ください。
email: market@vectorworks.co.jp
■機能の概要などを知りたい場合:
建築、レンダリング、ワークシートなど、ご質問の多い内容をまとめて紹介しているコンテンツ『Vectorworks Navi』をご利用ください。
■動画で操作方法を学習したい場合:
Vectorworks のさまざまな機能や操作方法などを動画で学習できる『Vectorworks University』をご利用ください。
■Vectorworks の機能マニュアルを参照したい場合:
『Vectorworks ヘルプ』をご利用ください。
『Vectorworks ヘルプ』は、Vectorworks を起動してから、「ヘルプ」メニュー >「Vectorworks ヘルプ」から参照いただけます。
■他の Vectorworks ユーザーと意見交換したりアドバイスなどをもらいたい場合:
Vectorworks ユーザー同士のコミニケーション・ディスカッションの場として、『ユーザーフォーラム』をご用意しています。
情報共有や意見交換、問題解決などにぜひご利用ください。
Vectorworks のインストールが行えない、インストールして起動してもすぐに強制終了してしまう、といった場合は、さまざまな原因が考えられるため、まずは状況に応じて下記ページをご参考ください。
■インストールの方法が分からない、インストールができない場合:
■アクティベーションが通らない・失敗する場合:
■Vectorworks が頻繁に強制終了/クラッシュする場合:
まずは、Vectorworks の推奨動作環境を満たした環境でご利用かどうかをご確認ください。
ソフトウェアの不具合などの可能性も考えられます。「重要なお知らせ」に類似情報がないかご確認ください。
■問題が解決しない場合:
テクニカルサポートまでお問い合わせください。














































































