※ストローグ本社内観

Vectorworks活用事例

株式会社ストローグ
大倉 憲峰

Vectorworks活用事例

株式会社ストローグ
大倉 憲峰

2002年富山県に設立された株式会社ストローグは、木造建築の美しさと地震に耐えうる強度を両立させる「木構造エンジニアリング」で、建築家や設計者の自由な発想を実現するための製品や工法の開発を行っています。その設計からプレゼンテーションまで使用されているVectorworksの現状と未来について大倉憲峰さんにお話を伺いました。

BIMを活用した木構造エンジニアリング

強く美しい木構造を実現するための金物

Vectorworksとの出会いと業務の変遷

- Vectorworksを採用した理由は何ですか? -

当時のスタッフでVectorworksを使い慣れた方が多かったからですね。またその頃、主要なお客様や設計事務所もVectorworksユーザーが多かったので、周りの環境から自然と採用にいたりました。

個人的にはMiniCADから使っていますが、会社としては20年くらい前から導入しています。当時は2Dで図面を描いていました。意匠図は描くことが少ないのですが、詳細図や部品の製作図などの作成に使っていました。

ストローグ本社外観

当社は、元々コネクタの販売、いわゆる接合の金物を作っていました。シンプルな住宅ならコネクタの開発と販売だけで終わりなのですが、今大きな木造の建物も増えてきているので、基本設計の段階から意匠設計の方と一緒に開発することもあります。

開発といっても作って終わりではなく、構造をどう成り立たせるかを考えなくてはいけないので「ここはこう納まっています」「こう施工したら良いですよ」などの提案を必要とします。ただコネクタだけを考えるのではなく構造を考えることが多くなってきて、複雑な形状の建物の場合は木材の加工まで行うこともあり、失敗しないようにBIM化するようになりました。

本社の隣に試験施設があり、工法を研究・開発して、試験をして、実際のプロジェクトに使っていくという流れになります。その中で細かいところの納まりや部材の製作物などにVectorworksを使っています。

ストローグ本社内観 開放的で心地よい空間

- 3D機能を使われることは多いですか?-

立体でないと理解しづらい形状が増えてきていて、最近3Dを作成することが多くなってきました。斜めに繋いだりとか立体的にねじれているとか。そうなると、2Dの平面図や立面図だけでは理解が追いつかないので、物件に応じてですね。

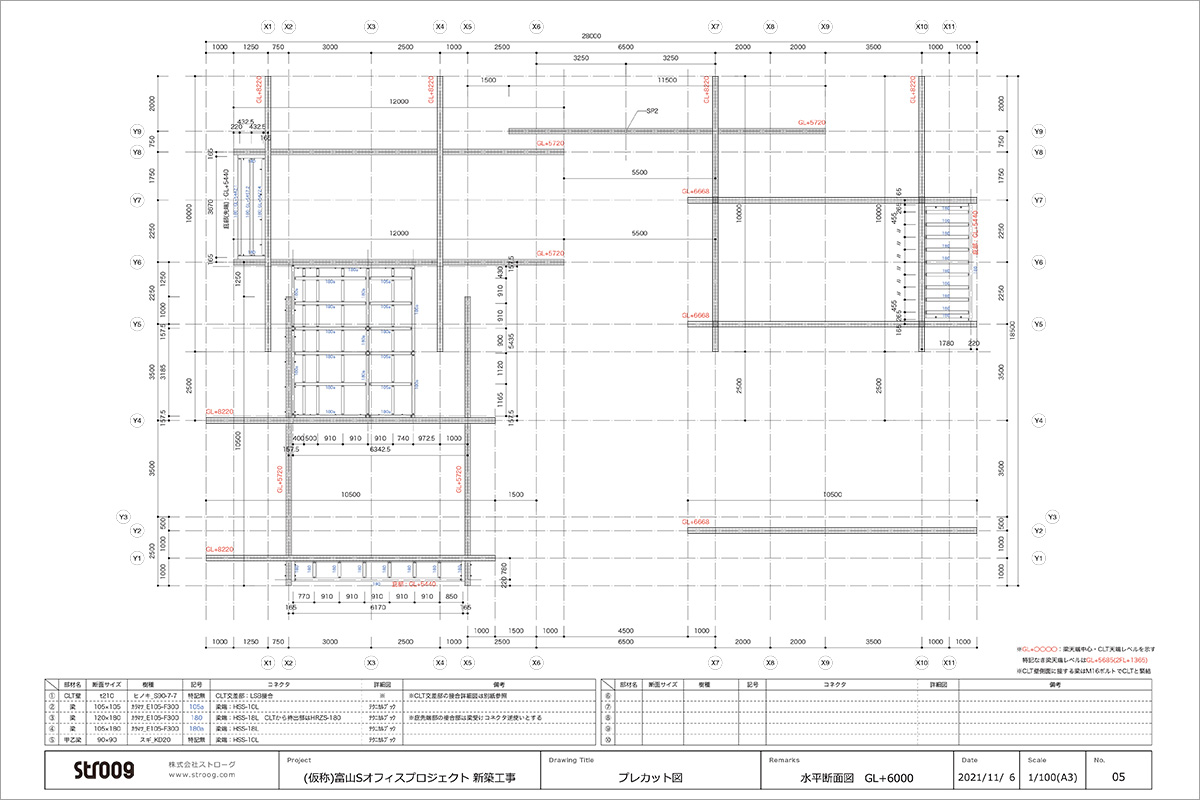
木加工をする際もBIM化してチェックした後に、3Dから2Dの加工図に落とし込みます。設計者に承認をいただく場合、プレカット図など2D図面を書かなきゃいけないので3Dで完結しておいて、Vectorworksのビューポートで2Dのプレカット図に落とし込んで承認図を作成しています。

Vectorworksで作成したBIMモデル

BIM化して良かったこと

- 本社建物もBIMで作られているのですか? -

そうです。工法がCLTだと壁だらけの建物になりがちですが、設計の株式会社マウントフジアーキテクツスタジオ一級建築士事務所の方で、CLT同士を直交させ積み上げる手法を考えられて、今までのCLTとは異なる開放的な建物になりました。マウントフジさんで3Dモデルを作られて、当社は構造をメインに行いました。Rhinocerosも使われていましたが、データのやり取りはVectorworksです。

スキップフロアになっていたり、こういった木造でも美しく綺麗に見えるような接合をしています。接合部が中にあり、見えないようになっているんですよ。ボルト穴とか加工穴とかも一切見えなくなっていまして、その時にBIMの3Dモデルの中でちゃんと納まっているかどうか、綺麗にみえているかどうか色々な角度からチェックします。BIM化して良かったと思った点です。

BIMモデルでの干渉チェック

また、BIM化すると積算的にも使えますね。部材の数をかぞえたり、ビューポートで断面を切るところを決めて図面化したり。干渉確認にも使うので、施工会社さんとの打ち合わせにも便利だと感じます。

当社にお客様が見学に来られた場合は、Vectorworksで納まりをPDFにしたものを紙芝居風にしてiPadで見せています。BIMデータがあったから作れたもので、とても説明しやすいです。「アンカーボルトはこう入っていますよ」などと写真を添えて作っています。実物は見えなくなるものなので、こういう見せ方でないとわかっていただきづらいんです。BIMやってて良かったなと思いました。

納まりをiPadで説明

複雑な形状ほどBIMモデルを活用

施工会社と施工の順番を打ち合わせる時も、同じようにVectorworksデータで作ります。加工の時に絶対穴を開けちゃいけないところを色分けして、作業時、視覚的に理解しやすいようにしています。2D図面も別にあるのですが、見比べて加工ミスがないかとか、2次元よりも3次元の方がわかりやすいんです。「これは難しいかな」「足場がここに必要だな」など打ち合わせがスムーズになります。

- 2D図面は別途作っているのですか? -

大元の図面としては、意匠図と構造図があります。それをBIM化して木材の加工の前にプレカット図を書いて承認を得ます。修正で行ったり来たりがあるものですから、その時も3Dモデルを編集して図面を書き出しています。2D図面が別ではないので、3Dさえ変更すれば更新できるので早かったですね。

3Dモデルから書き出したプレカット図

複雑な形状だとBIMモデルを作るのが大変だと思うのですが、BIMだと確認しながら作れます。3Dにしないとわからないところもあります。この建物もミスは0ではなかったのですが、補修ができる程度でした。BIMじゃなかったらもっと大変なことになっていたと思います。

最近は難しいものほどBIMでデータを作って確認するようにしています。その方が間違いも少なく、時間を削減できます。加工やコネクタの制作に関しても、3Dで一度確認しているので施工時に安心感があります。BIMやってなかったら、うまくいくかどうか不安になりますね。

BIMモデルを作っていても、スケール感が違うので組み上がった感動はあります。マウントフジさんもBIMで意匠を仕上げられていますが、現場で見るとみなさん驚かれますね。プラス「ちゃんとできた」という感動もあります。

- 今後のVectorworksの活用についてお聞かせください -

Meta QuestでのVRや、iPhoneでARなどは使ってみたいです。CADを使う場面も、小さなコネクタから納まり図や構造図まで広がっています。機能をもっと知っているともっと素早くできるのかもと思っています。

大倉 憲峰

株式会社ストローグ

【取材協力】
  • [取材協力] 株式会社ストローグ 大倉 憲峰氏(取材:2025年9月)
  • [写真] ※ストローグ本社内観 撮影:新 良太
  • 記載されている会社名及び名称、商品名などは該当する各社の商標または登録商標です。 製品の仕様、サービス内容等は予告なく変更することがあります。

Vectorworks

2D/3Dのシームレスな作図機能に、彩色豊かなプレゼンテーション、リアルなレンダリングなど、デザイナーの設計環境を支援する汎用CADソフトウエアです。

 詳細 

評価版(トライアル)

Vectorworksの新規購入やバージョンアップをご検討のお客様は、評価版を是非お試しください。使用期限以外、全ての機能をお試しいただけます。

 詳細 

イベント情報

Vectorworks製品に関するイベント出展や、他社主催セミナーのご案内などの情報を掲載しています。

 詳細