ユーザ事例 & スペシャルレポート

東海大学 工学部 建築学科では、安全で快適に暮らせる都市と建築を創造できる人材の育成を目指し、情報化時代に対応した教育も実施しています。建築設計におけるCAD教育は約10年前から毎年夏休みの3日間を利用して導入教育を行っています。CADはVectorworksとAutoCADでそれぞれ平行して同じ内容で集中講座を行っています。今回、Vectorworksの講座を担当されている建築学科 准教授の十亀 昭人(そがめ あきと)先生にお話をうかがいました。


-CADは何年生から使いますか? -

1年生は手描きからスタートし、2年生の前期まで図面は手描きとなります。2年生の後期からは、どんどんCADを取り入れようということで、2年生の夏休み期間中にCADの導入教育としてデジタルデザイン演習という3日間の集中講座を行っています。まったくCADを使用したことがない学生が、この講座を受講することで後期からCADを使ってどんどん図面を描いていくことができるようになります。

-デジタルデザイン演習の内容は? -

学生数は、1学年150名から160名で、デジタルデザイン演習はほぼ全員が受講します。VectorworksとAutoCADの2コースがあって、それぞれ定員は80名前後で教員3名とTA3名で指導します。どちらも基本的な内容は同じで、それぞれのCADの特徴や基礎知識、基本的な操作説明から始め、朝から夕方まで3日間続けて行います。1日目で基本的な操作の説明をほぼ終了し、2日目と3日目は各自演習課題をCADで仕上げて提出するという内容です。

 

-デジタルデザイン演習での課題の進め方は?-

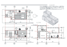
1年生では創作課題がないのですが、2年生の前期に設計で創作課題があります。その後、デジタルデザイン演習で、今年は震災に関連し「被災地ボランティアの短期滞在型住宅」という課題を出しています。課題は毎年変えています。住宅、研究施設、別荘などさまざまですが、比較的規模が小さい住宅系が多いです。1ヶ月前に敷地条件と課題概要を提示して、各自計画案を考えて、手描きのスケッチを授業の初日に必ず持参してもらいます。計画案を持参しなかった学生は受講できないということにしています。各自考えてきた計画案をCADで図面化するにあたっては、エスキースというより教員がその場でおかしいところは指摘し、指導しながら進めています。

-CADソフトによる違いはありますか?-

演習課題はVectorworksもAutoCADも内容は同じです。課題はA4一枚にまとめ、出力して提出させています。コンセプトと2次元の平面図、断面図の提出としていますが、3D表現についても簡単にレクチャーしています。2、3年前は3Dを教えていなかったのですが、学生の進み具合が年々早くなってきていることから、3Dもレクチャーしています。そういう意味で、教材は毎年内容を更新しています。課題提出の参考図面には3D表現も入れていて、3Dまで作成する学生も、昨年は数人いました。ですが、AutoCADでは2Dがなんとか終わる感じで、3D表現までするということはまずありません。授業1コマが90分ですが、Vectorworksだと平均して2コマか3コマ分はAutoCADより早く授業が進められることもあって、Vectorworksでは3Dまで作成できる学生も数人ですがいます。ただ、3Dではなく2Dでも目地を入れたり植栽を入れたりという描き込みをしようと思うといろいろできるので、そちらに時間をかける学生もいます。

-Vectorworksを担当して感じることは? -

目に見えて毎年CADの理解が早くなっているように感じます。授業中の質問の数も苦労することも年々減ってきていて、1日目から自習で淡々と進んでいます。Vectorworksは直感的に操作でき、わかりやすいのではないかと感じます。操作スピードについても、デジタルデザイン演習の授業を見る限りでは、AutoCADと平行してスタートしてもVectorworksの方が平均して早く終わります。ということは覚えるのも早く3Dも操作しやすいのではないかと感じます。さらに、昨年に比べ学生の操作スピードがあがっているように感じるのは、今年からCAD教室の設備を変更したことで、より操作しやすくなったこともあるのかもしれません。

-昨年とCAD室の設備はどのように変わったのですか? -

昨年までは、縦横2mぐらいのサイズのスクリーンを2カ所に設置し、そこに講師の作業画面を映して授業を進めていました。今年からは、2台のパソコンの間に講師の作業画面が表示されるモニタを1台設置しています。スクリーンの場合は教室内を暗くしますので、手元の資料も見にくかったり、ピントがずれてぼけたりということがあったと思います。まだ1日目ですし、初めての試みなので、授業を始めるまで様子はわからなかったのですが、学生の進み具合をみてもモニタを設置したことでかなり操作はしやすくなっているようです。

-デジタルデザイン演習に対する学生の反応はどうですか? -

一日中続けて3日間なので学生にとってもかなりハードな授業だとは思います。短期間で一気に学ぶということで復習しにくいのかなということはあります。ですが、3日間で一通りの図面は描けるようになるので、3Dまではできなくても満足度は高いようです。昨年は1日目に3Dまで進む学生はいなかったのですが、今年は数名いましたので、個人的に先輩などから教えてもらっている学生も増えているのではないかと思います。また、たった3日間の授業ですが、最初にどんなCADを使うかということは意外と重要で、その後に影響があるのではないかと感じます。本校は卒業設計と卒業論文は選択になっていますので、どちらか一方を選択する学生がほとんどです。使用ソフトの制限もしていませんが、卒業設計を選択する学生の約9割はVectorworksで図面を作成しています。

-後期に入ってから他のソフトとの連携はありますか? -

本来であれば、Vectorworksで作成した図面をイラストレーターに持っていって、プレゼンテーションをするという流れで教えられるといいのですが、イラストレーターなど他のソフトは教えていません。CADの教室にイラストレーターが入っていないこともあって、学生は個人的に先輩に教わるというのが現状のようです。2年生の後期からはCADで出力してそのままプレゼンボードに貼る学生もいますし、イラストレーターなど他のソフトに持っていってプレゼンテーション用の図面を作成する学生もいますので、表現方法はそれぞれ違います。

-今後どのような授業を行いたいですか? -

このデジタルデザイン演習の授業以降、設計でCADを使用する学生の割合は劇的に増えますので、受講前と後では学生のCADの活用率はまったく違います。来年は、さらに学生の進み具合が早くなることが予想されますので、3Dまでできる学生の割合を増やす内容ということも検討していかなくてはいけないと思います。年々学生のペースがあがっていますので、CADの導入教育の時期も2年生の夏でなく1年生の冬ということも検討しなくてはいけないかもしれません。おそらく数年後は3Dが当たり前になるのではないかと感じます。


ー取材を終えてー

デジタルデザイン演習1日目の午後に取材にうかがいました。CADの操作は初めての学生ばかりということでしたが、静かな教室で、CADの操作に没頭している学生の姿が印象的でした。3D操作にとりかかっている学生も数名いて、使用ソフトで進むペースがかなり違うとおっしゃる先生のお話は興味深く、数年後の授業内容がとても気になりました。

エーアンドエー株式会社 販売推進部 CR推進室 竹内 真紀子

【取材協力】

東海大学 http://www.u-tokai.ac.jp/

工学部 建築学科 准教授 十亀 昭人 氏

(取材:2011年7月)

この事例のPDFファイルをダウンロードする

 

記載されている会社名及び商品名などは該当する各社の商標または登録商標です。 製品の仕様は予告なく変更することがあります。